Experience the perfect blend of modern luxury and comfort in this newly built designer residence – ideal for those who value style, privacy, and peaceful living.
📌 Land Size: 176 sq.wah
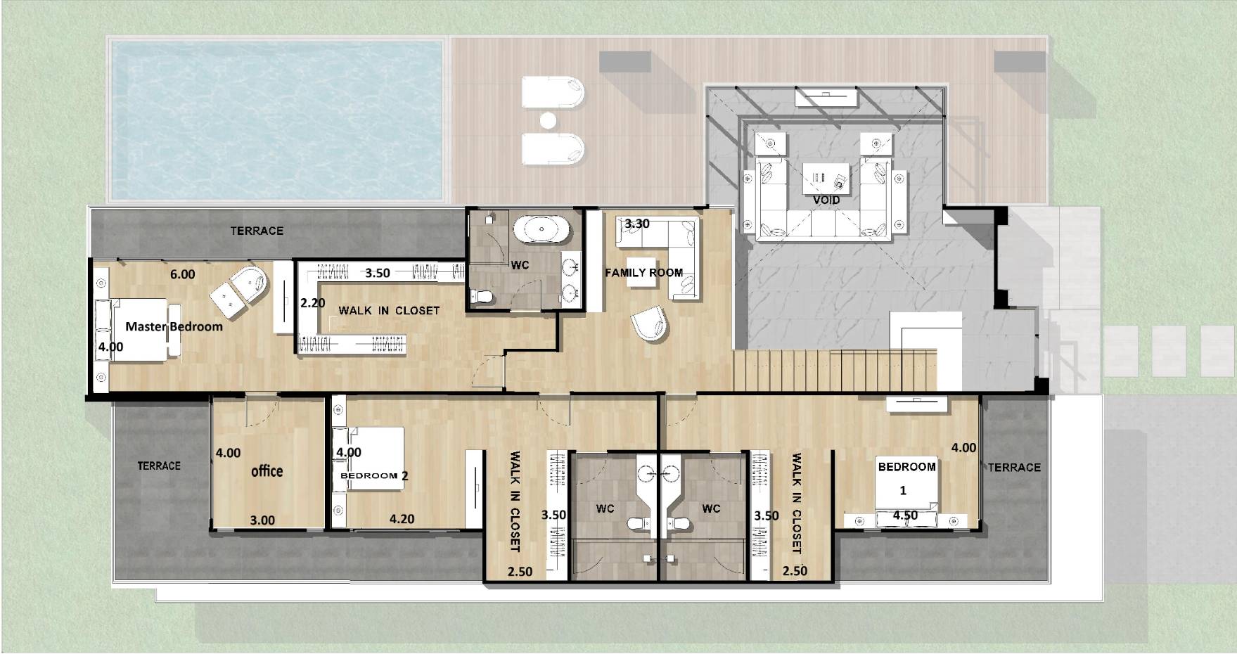
🏠 Total Usable Area: 728.68 sq.m.
• Ground Floor: 436 sq.m.
• Upper Floor: 292 sq.m.
💰 Hot Price: 24.9Million THB
📄 Transfer Fees & Taxes: 50/50 (Buyer & Seller)
⸻
🏡 Main House Features – The Privacy Villas
• 4 Bedrooms – All with private en-suite bathrooms
• 1 Maid’s Room
• 6 Bathrooms – Including a luxurious master bath with bathtub
• Grand Living Area – Double-volume ceiling height of 6.5 meters
• European-style Built-in Kitchen
• Remote-controlled Curtains (Living Room)
• Walk-in Closet
• Furniture Included: Beds, Bedside Tables, TV Cabinet, Sofa
• Private Saltwater Pool (5x10m) with RGB Mood Lighting
• Covered Parking for 4 Vehicles
• 4-way Inverter Air Conditioners in all Bedrooms
• Water Heater (Boiler System) & Water Pump
• 5 CCTV Security Cameras
• Electric Garage Door
• Digital Door Lock System
• Solar Panel System for energy efficiency
• Double Wall Construction for heat and sound

